Velox Boiler Locomotives

Gallery opened: Aug 2001

Updated: 28 June 2016

New pc, text fixed
Back to Home PageBack to Loco Index

Left: The French Velox boiler locomotive.

This was a 1937 reconstruction of an existing 4-6-0 locomotive by the Paris, Lyons & Mediterranean Railway. It was taken over by the French national Railways, and before the Second World War it was working express passenger trains up to 580 tons on the Paris-Dijon route.

Four-cylinder compound; boiler pressure 290 lb/sqin at 715 degF.
Valve gear: Walschaerts
Steam production rate: 12 ton/hr
Auxiliary steam consumption: 1 ton/hr

A Velox boiler burns fuel oil or pulverised coal under pressure in a water-tube boiler. The pressure in the combustion chamber is about 35 lb/sqin, increasing the air density, and so making more oxygen available and allowing a higher firing rate. It contains only a small mass of water, so the boiler can raise steam from cold in 15 to 20 minutes. After stopping firing for an hour, apparently only 6 minutes were require to regain steam pressure.

Thinking about all that compressed air, you can probably see the way that this is going already. The Velox boiler requires an awful lot of ancillary equipment, all of which has to be carried around on the locomotive. The air compressor will use up a lot of power- which has to be available before you raise steam.

The Velox locomotive therefore carried the following around with it:

  • Auxiliary diesel-electric generator for starting. Presumably this had an electric starter motor and battery.
  • Gas turbine to drive air compressor, coupled to a steam turbine for assistance and speed regulation, and an electric starting motor.
  • Another steam turbine to drive the water circulating and fuel-oil pumps, coupled to another electric starting motor. (to start the fuel pumps before raising steam? Steam turbines start themselves)
  • At least two feedwater heaters- one heated by the combustion gases, and the other by the exhaust of the steam turbines.
About the only kind of motive power missing here is clockwork. (Not counting the driver's watch) Maintenance must have been a nightmare, and I don't really see the great advantage of being able to raise steam quickly. After all, trains are supposed to leave at planned times...

Left: Side view of the French Velox locomotive, with its tender

Corridors within the streamlined casing allowed inspection of the machinery en route. The fuel, water and the auxiliary diesel-electric generator were carried in a 6-wheel tender.

Left: The internals of the French Velox locomotive

Note the actual boiler (D) is completely buried by its ancillary equipment.

The high-pressure cylinders appear to be on the outside. The connecting-rod has been removed in this photograph.

Key to photograph above:
A Auxiliary steam condenser
G Blower
M Steam admission pipes
B Feedwater treatment
H Air ducts from blower to combustion chamber
N Chimney
C Feedwater purifier
I Sand boxes
O Throttle valve
D Steam generator
J Economiser (feed heater)
P Reversing gear
E Gas turbine
K Blower starting motor
F Air entry to blower
L Braking air pump

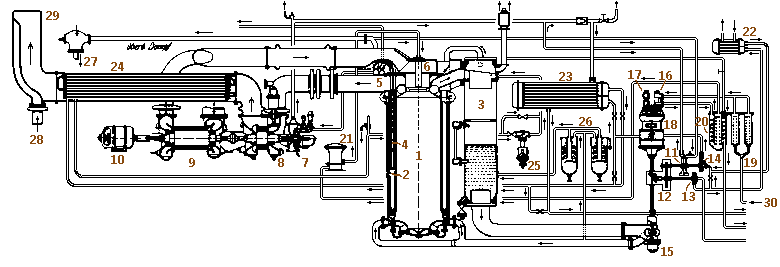
Left: The steam circuit of the Velox locomotive.

Key to steam circuit diagram above:
1 Combustion chamber
9 Air compressor
17 Lube oil pump
25 Controller
2 Evaporator
10 Electric motor
18 Electric motor
26 Oil separator
3 Water separator
11 Steam turbine for pumps
19 Fuel oil prefilter
27 Superheated steam to HP cylinders
4 Superheater
12 Gearing
20 Fuel oil filter & heater
28 LP exhaust
5 Superheated steam reservoir
13 Feed pump 1
21 Air/oil metering unit
29 Chimney
6 Oil burner
14 Feed pump 2
22 Lube oil cooler
30 Fuel oil from tender
7 Steam turbine
15 Circulating pump
23 Aux steam condenser
8 Gas turbine
16 Fuel oil pump
24 Feed water heater

Left: The internals of the Velox loco from the other side

Starting procedure:

  • Start diesel generating set.
  • Use electricity from this to start the two auxiliary turbine groups
  • Use electricity to preheat fuel and start combustion.
  • Change over to regular fuel oil supply. (???)
  • Steam turbines take over from electric starting motors.

Left: The French Velox boiler locomotive

The view from the cab. Three pressure gauges with their cutoff valves can be seen.

The instrument on the right is (I think) a lockable speed recorder.

Bibliography; Bell, 1946. Stoffels

Back to Home PageTop of this pageBack to The Loco Index